인사말
  • 제품소개

  • honeywell

  • asco

  • TPC

  • parker

  • azbil

  • belimo

  • HKC

  • SIEMENS

  • ㅌㄱ

  • 전화번호등
  • 고객센터

> 제품소개 > Honeywell

소스

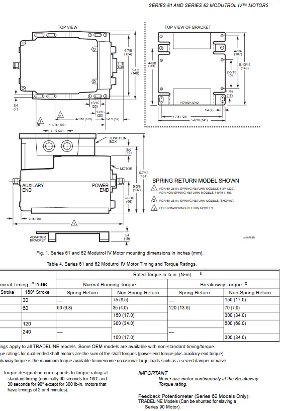
[하니웰] M6284F1013 모츄럴모터
ㆍHoneywell -모츄럴모터 (액츄에이터) M6284F1013

-M6284F 시리즈-

* 150 lb-in. at standard timing(60 sec. for 160°)
* non-spring return
* Adjustable stroke (90° to 160°), 2 auxiliary switches
[하니웰] M6284F1013 모츄럴모터

2222.jpg

4444.jpg

5555.jpg

77777.jpg

2222222.jpg

제목 66666.jpg